Interior Remodels – Non-Structural Plans & Permit Support

Services details

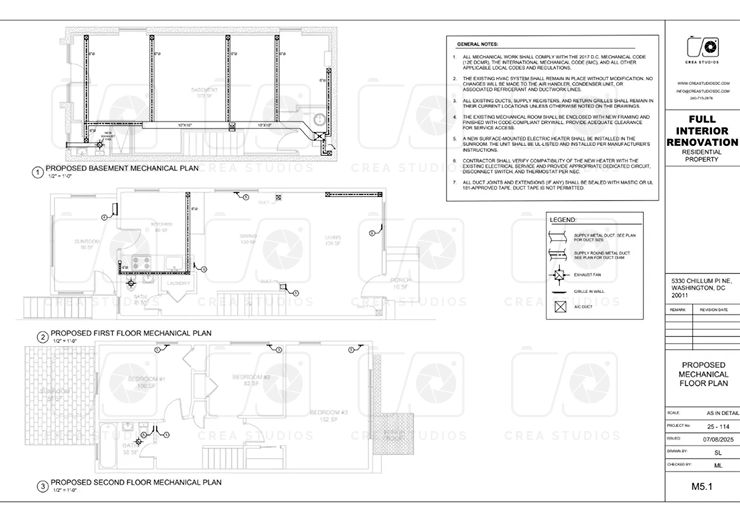
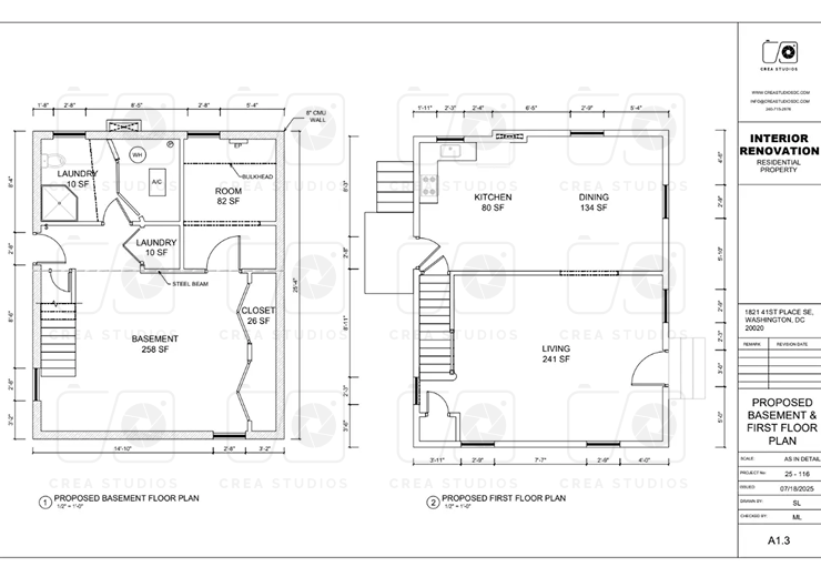
Thinking of changing your home’s interior layout? Whether you’re relocating a bathroom, updating a kitchen, or reconfiguring rooms, even small modifications often require a permit — and that starts with clear, accurate plans.

Kitchen remodel with non-structural permit-ready plans
Open floor plan redesign without structural changes – permit-ready
Non-structural interior remodel plan ready for permit submission

At CREA STUDIOS, we help you redesign and legalize your interior remodels without the hassle. Our team creates permit-ready plans that comply with local codes, ensuring you avoid costly delays or violations.

What we offer:

  • Floor plan redesigns (without structural changes)

  • Code-compliant drawings for permit submission

  • Layout optimization based on your goals

  • Fast delivery — typical turnaround in 7 to 10 days

Ideal for

  • Bathroom or kitchen relocations

  • Interior reconfigurations (walls, doors, rooms)

  • Legalizing unpermitted modifications

Why Choose Us?

You’ll save time and avoid confusion. We take care of the design, code checks, and submission documents — all coordinated with your contractor or inspector if needed. No structural changes? No problem. We’ll make it easy and fast.