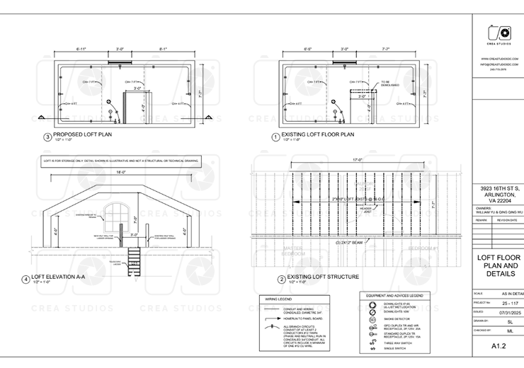
As-Built Plans – Accurate Drawings for Renovation, Sale, or Permits

Services details

Need updated drawings of your existing property? Whether you’re remodeling, applying for permits, selling, or buying — having accurate as-built plans is essential.

Accurate as-built architectural drawing for property renovation
Existing condition plans used for home renovation
Architect taking on-site measurements for as-built plan

At CREA STUDIOS, we provide fast, professional as-built drawings that reflect the current conditions of your space. These plans are created based on a site visit and measurements, and can be used as the foundation for future renovations, legalizations, or real estate transactions.

What we offer:

  • Site visit and on-site measurements

  • Scaled drawings of existing conditions

  • Quick delivery — typically within 3 to 5 business days

Ideal for

  • Contractors and designers needing existing layouts

  • Homeowners planning a remodel

  • Flippers and investors

  • Legalizing undocumented changes

Why Choose Us?

Accurate plans save time, reduce errors, and are often required before any new work can begin. We deliver fast, reliable documentation so you can move forward with confidence — no delays, no guesswork.